Monday, 27 April 2026

Supermarket giants still in the mix for Meadows development

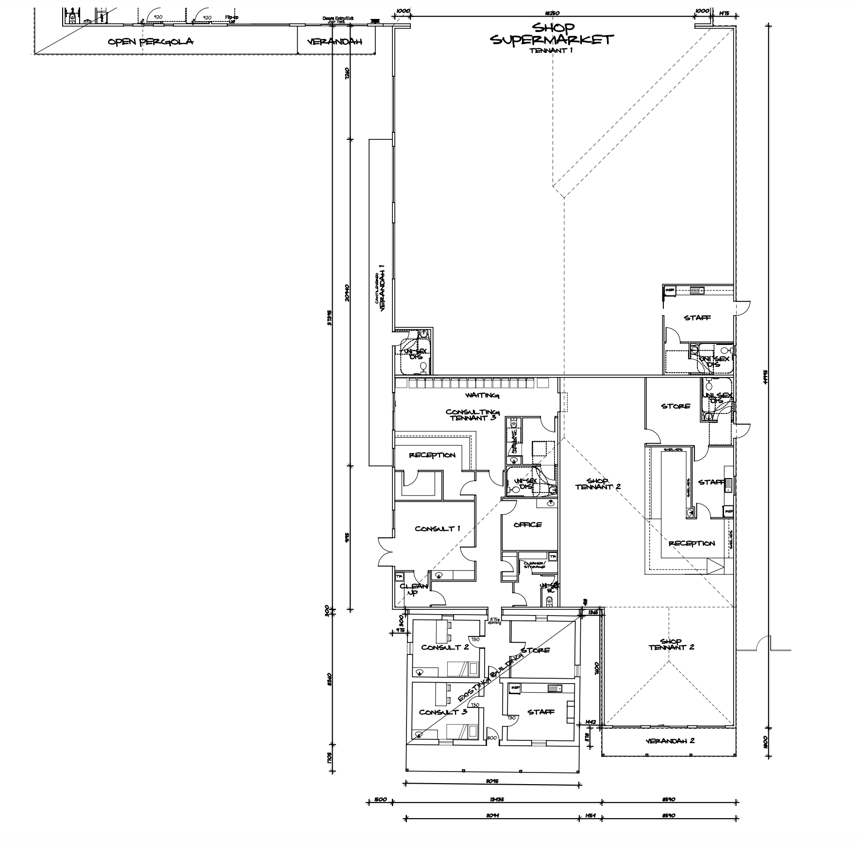
A potential Drakes, IGA or Foodland is back on the table for Meadows, with developers revising its plans to enable a bigger floor space for a supermarket in its ‘Meadows Central’. As previously reported in The Southern Argus, Victor Harbor...

Giorgina McKay profile image
by Giorgina McKay
Supermarket giants still in the mix for Meadows development
The revised development layout with one less shop tenancy to accommodate a bigger supermarket.

Read More

puzzles,videos,hash-videos