Thursday, 23 April 2026

ROCKING THE BOAT: ‘Tough’ Goolwa Wharf discussions continue

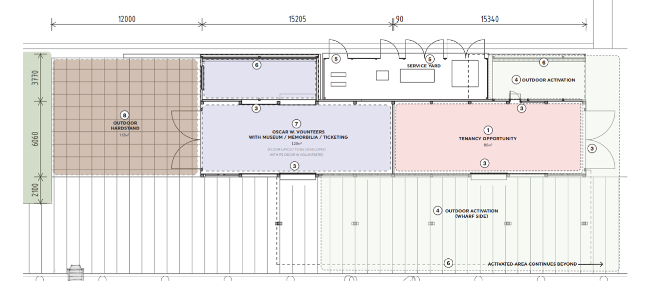
By Giorgina McKay Some tough decisions have been made on Alexandrina Council’s controversial Goolwa Wharf Precinct Revitalisation Project, but the PS Oscar W’s final mooring location remains up in the air. As previously reported in The Southern...

Giorgina McKay profile image
by Giorgina McKay
ROCKING THE BOAT: ‘Tough’ Goolwa Wharf discussions continue
The current Wharf Shed layout proposal inclusive of an additional external allocation.

Read More

puzzles,videos,hash-videos