HAVE YOUR SAY ON HAMPDEN WAY: Feedback sought on rezoning proposal
Local residents will soon be able to have their say on a major rezoning process at Strathalbyn’s ‘northern gateway’ to allow for a range of shops – including a small-scale supermarket – to address town growth. Strath Property Investments...
Local residents will soon be able to have their say on a major rezoning process at Strathalbyn’s ‘northern gateway’ to allow for a range of shops – including a small-scale supermarket – to address town growth.
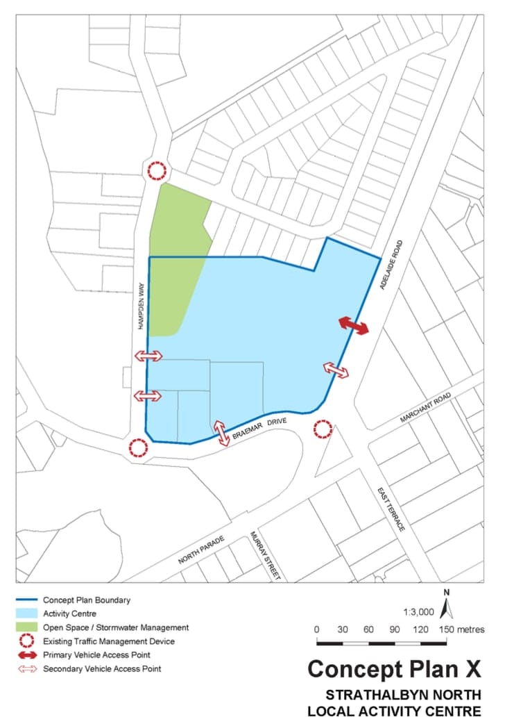
Strath Property Investments Pty Ltd is seeking to change zoning of Lots 13, 14 and 20 Hampden Way, and Lots 11 and 12 Braemar Drive to a ‘Local Activity Centre Zone’ to allow development of the land.
Ryan Moyle, an Associate with Ekistics, is the project manager working on behalf of the proponent ‘Strath Property Investments’ to co-ordinate the technical studies and other documents required to rezone the land
He told The Southern Argus the area being considered for rezoning is five allotments of land on the corner of Adelaide Road, Braemar Drive and Hampden Way – north of Braemar Drive only.
“The current zoning allows for housing and some commercial and retail uses such as consulting rooms, offices and small-scale shops,” he explained.
“The proposed new zoning would allow for uses such as a supermarket, speciality shops, bulky goods, childcare, consulting rooms and other personal services to meet the needs of locals.
“Strathalbyn has grown considerably in the last 5 years and locally-available services are needed to respond to this growth.”
The rezoning proposal is separate to a previously approved On the Run service station and ancillary food development at Lot 508 Braemar Drive, and an already under-construction indoor gym, medical centre and pharmacy on part of the site.
Due to the large number of Strathalbyn and district residents choosing to shop outside of the region, Mr Moyle believed the rezoning would lead to future development of necessary facilities and services.
“Currently, a large number of Strathalbyn residents travel to Mount Barker for their weekly shopping needs and the rezoning would provide these services closer to home,” he said.
“The rezoning does not seek to expand the boundaries of the township of Strathalbyn.
“Instead, it seeks to meet the growing needs of residents who have chosen to live in Strathalbyn.”
A large area is also being proposed for the sustainable collection and treatment of stormwater, including landscaping and open space.

Independent public consultation
Planning Futures Director Stephanie Hensgen, and Senior Engagement Advisor Jesse Chau have been appointed to undertake an independent 9-week consultation process – starting on Monday, November 21, 2022, and continuing until January 23, 2023.
During this time, residents are invited to lodge a written submission on any proposals featured in the Code Amendment.
“It is important that residents of Strathalbyn have their say on this rezoning process as it will be used to direct the future use and development on these parcels of land,” Ms Hensgen said.
“Community input will be used to inform the rezoning process and will help make the final decision on the rezoning
“An independent Consultation Report will (then) be prepared and submitted to the Minister for Planning, who will make the final decision to adopt the rezoning (with or without changes), or refuse it.”
All details of the technical reports and rezoning proposal will be available at (https://plan.sa.gov.au/have_your_say/code-amendments) from Monday.
Residents are invited to meet Ms Hensgen and Mr Chau at two upcoming drop-in information sessions in December to find out more about the proposal and ask any questions:
λ Thursday, December 8, 2022 (5.30pm-7.30pm) at Strathalbyn Masonic Hall, 3 Dawson Street, Strathalbyn.
λ Saturday, December 10, 2022 (10am-12 noon) at Strathalbyn Football Club, Coronation Road, Strathalbyn.
Those wanting to have their say can do so by:
λ Visiting: the Plan SA website and submitting a response online at (https://plan.sa.gov.au/have_your_say/code-amendments).
λ Emailing: (enquiries@planningfutures.com.au).
λ Posting: PO Box 58, Daw Park SA 5041.
Following the consultation period, an Engagement Report will be prepared, and all submissions reviewed before the Minister makes a decision.
It’s important to note the proposal to rezone this land is not a development proposal.
Any future development proposals will still need to seek development approval via a separate process.
What are your thoughts on changing the lots’ zoning to allow for a small-scale supermarket and other retail stores? Send a Letter to the Editor to news@southernargus.com.au or text 0435 031 908.