Wednesday, 22 April 2026

Contentious Mount Compass Golf Course Estate code amendment changes get green tick of approval

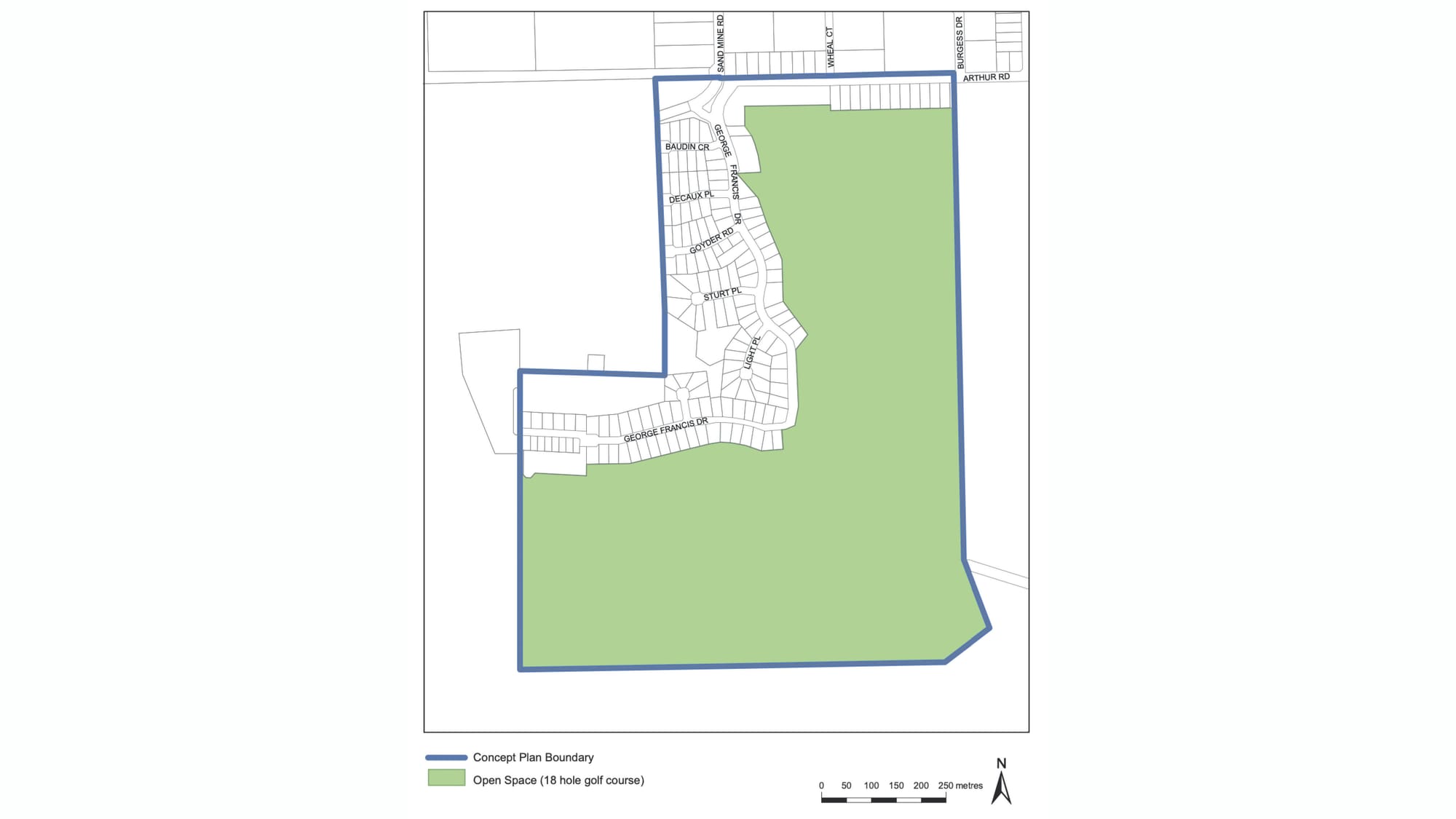
A proposed code amendment which would see zoning changes to the Mount Compass Golf Course Estate has been given the greenlight, despite receiving widespread criticism from residents and local politicians. As previously reported in The Southern...

Giorgina McKay profile image
by Giorgina McKay
Contentious Mount Compass Golf Course Estate code amendment changes get green tick of approval
The concept plan identifies where the 18-hole golf course is located to guide associated land uses and activities.

Read More

puzzles,videos,hash-videos